ASM Has collaborates with Australian technology, Green Renewable and recyclable Ethanol fuel driven station alternatives.
India is a country well positioned to embrace the environmental, economic and social benefits of ethanol fueled power and Aero Dome Systems have an Ethanol Fuel Management System that maximizes the efficiency and productivity of ethanol fuel to burn at over 50% more efficiently than traditional diesel and other fuel alternatives.
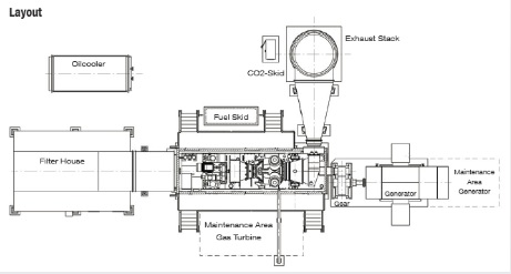
Aero Dome Systems has developed the ethanol fuel management system that feeds the turbines of a gas turbine engine.
We are aspecialist energy service provider in the power generation sector, with a project capability from simple open cycle power plants to the most complex Tri generation solutions, on an international scale across all industries. Our focus is to always ensure we deliver the best fit solution utilising state of the art proven technical solutions, with our strategic ambition to reduce the consumption of fuel and emissions, whilst delivering a highly reliable and competitive service.
The team at ASM has a proven track record in project development, taking customers ideas and turning them into reality, all on an international scale. Collectively the leadership team within ASM have decades of experience in the energy, oil & gas and resource sector with a portfolio of projects across the world.
We offers comprehensive service and support to gas turbine and co-generation owners and operators. These services include specialist overhaul and repair maintenance services.
We also provide technical specialists and support in the areas of design, engineering and spares supply through its Original Equipment Manufacturer (OEM) alliances.
Our team have carried out over 75 inspections on a range of different heavy duty gas turbines.
We offers Organic Rankine Cycle (ORC) technology as an advanced heat recovery system.
The ORC is named for its use of an organic, high molecular mass fluid with a liquid-vapor phase change, or boiling point, occurring at a lower temperature than the water-steam phase change. The fluid allows Rankine cycle heat recovery from lower temperature sources such as biomass combustion, industrial waste heat, geothermal heat, solar ponds etc. The low-temperature heat is converted into useful work, that can itself be converted into electricity.
OPERATIONS AND MAINTENANCE SERVICES can be defined as those activities related to the performance of routine, preventive, predictive, scheduled, and unscheduled actions aimed at preventing equipment failure or decline with the goal of increasing efficiency, reliability, and safety.
We can provide all the above in a comprehensive operation and maintenance service that will ensure your facility achieves it’s guaranteed performance. The ASM team will improve process efficiency, reduce maintenance costs and energy consumption, as well as dramatically extending equipment life.